ネオコーポ茨木 8階
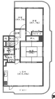
ぜひ一度見ていただきたい、「ネオコーポ茨木」です。幅広い方にお勧めしたい高ニーズな3LDKの物件です。押入の収納は布団だけではなく他にも色々な物が収納できます。中古マンションですが、綺麗に整備されているので住み心地良好です。センチュリー21 エステートSHINがお客様の住まい探しを全力でサポート致します。こだわりやご要望などございましたら、お気軽に当社へお問い合わせ下さい。
ローンシミュレーションこの物件を購入した場合の、月々の支払い価格の一例です。借り入れを保証するものではございません。
- 返済期間
-
- 金利
-
- ボーナス時の増額(1回分)
-
- 借入金額:
-
- 頭金:
-

- 毎月の返済額:
(※元利均等方式 金利5.00%まで ※返済年数5~50年まで入力できます)
(※ボーナスは年2回で計算しています。1000万円まで入力できます)
(※物件購入時、その他諸費用が発生する場合がございます)
担当者のコメント 溝口 鉄也

- 専有面積が81.09平米以上ある物件でゆったりと生活したい方にいかがでしょうか。バルコニーをご活用いただけます。押入れもついておりますので、布団などの収納スペースにも困りません。ご好評の角住戸で静かに快適な生活をすることができます。茨木市で新居を手に入れるなら、東海道本線茨木周辺でお求め下さい。利便性の高い暮らしが可能です。ご要望やご質問など、ご連絡お待ちしております。
ポイント・特徴
物件概要
【中古マンション】 物件番号:101018592 情報更新日:2026年02月06日 次回更新予定日:2026年02月20日| 所在地 | 大阪府茨木市藤の里1丁目 | ||
|---|---|---|---|
| 交通 | |||
| 間取り/詳細 | 3LDK | ||
| 専有面積/バルコニー面積 | 81.09㎡/33.72㎡ | ルーフバルコニー面積/テラス面積/専用庭面積 | -/-/- |
| 価格 | 1,080万円 | ||
| 管理費 | 6,560円 | ||
| 修繕積立金 | 9,520円 | 修繕積立基金 | - |
| 権利金 | - | 駐車場/月額料金 | 空無/9,600円 |
| 土地の敷金/保証金 | -/- | 借地料/借地期間 | -/- |
| 土地権利 | 所有権 | 国土法届出要否 | 不要 |
| 用途地域 | 準工業 | 地勢 | - |
| 種別/構造 | 中古マンション/鉄骨鉄筋コンクリート | 向き | 東 |
| 築年月(築年数) | 1980年 4月 (築45年) | ||
| 所在階/階建 | 8階/11階建 | 棟総戸数/販売戸数 | 209戸/- |
| 管理組合有無 | 有 | 管理形態 | 管理会社に全部委託 |
| 管理員の勤務形態 | 日勤 | 管理会社 | 大和ライフネクスト株式会社 |
| 取引態様 | 仲介 | 現況 | 空家 |
| 引渡し | 即時 | 建築確認番号 | - |
| 物件番号 | 101018592 | 取引条件の有効期限 | 2026年02月20日 |
| 設備条件 |
|
||
| 備考 | こだわりポイント満載のネオコーポ茨木。騒音も気にならないのが特徴の角住戸で快適な生活ができます。トランクルームで収納スペースを確保することができます。和室はちょっとした安らぎ空間なのであると重宝します。新居をお求めなら、地域に詳しい当社にご依頼下さい。お客様のこだわりやご要望などがあれば、メール又はお電話から当社までお申し付けください。 | ||
| 取扱会社 |
|
||
※地図上に表示される物件の位置は付近住所に所在することを表すものであり、実際の物件所在地とは異なる場合がございます。



































