■■100万円値下げしました■令和3年建築の築浅戸建■角地
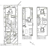
■専任 ■茨木市耳原三丁目 ■令和3年建築(築後4年の築浅戸建)■角地・広々した4LDKです■築浅戸建■土地面積/約26.63坪 ■建物面積/約34.87坪■LDKや3階の居室から「耳原公園」が一望
-
ローンシミュレーションこの物件を購入した場合の、月々の支払い価格の一例です。借り入れを保証するものではございません。
- 返済期間
-
- 金利
-
- ボーナス時の増額(1回分)
-
- 借入金額:
-
- 頭金:
-

- 毎月の返済額:
(※元利均等方式 金利5.00%まで ※返済年数5~50年まで入力できます)
(※ボーナスは年2回で計算しています。1000万円まで入力できます)
(※物件購入時、その他諸費用が発生する場合がございます)
情報の見方担当者のコメント 浅利祐作

- 訪問者をカメラで確認できるTVインターホン設置済み。複層ガラスは熱の移動を防ぎ、快適な室内環境を実現します。この物件は広々としたシステムキッチンなので、普段の料理も楽しくなるでしょう。建物面積115.28平米で広々している物件です。茨木市の阪急京都本線茨木市周辺にある戸建て探しで、何かお困りの事がございましたらセンチュリー21 エステートSHINまで何なりとお申し付け下さい。
ポイント・特徴
物件概要
【中古一戸建】 物件番号:90157295 情報更新日:2026年02月06日 次回更新予定日:2026年02月20日所在地 大阪府茨木市耳原3丁目 交通 間取り/詳細 4LDK/ 建物面積(坪数) 115.28㎡(34.87坪) 価格 3,430万円 駐車場/月額料金 有/- 土地の敷金/保証金 -/- 借地料/借地期間 -/- 土地権利 所有権 土地面積(坪数) 88.06㎡(26.63坪) 傾斜地部分面積 - 路地状敷地 - 私道負担面積/セットバック -/無 高圧線下面積 - 地目/地勢 宅地/平坦 接道状況 角地(北 私道 4.6m) 建ぺい率/容積率 60%/200% 用途地域 第一種中高層住居専用 都市計画 市街化区域 種別/構造 中古一戸建/木造 階建 3階建 築年月(築年数) 2021年 5月 (築4年) 総区画数/販売区画数 -/- 向き - 現況 居住中 その他の法令上の制限 景観法/宅地造成及び特定盛土等規制法/高度地区/準防火地域/日影制限有 取引態様/引渡時期 専任媒介/相談 建築確認番号 - 物件番号 90157295 取引条件の有効期限 2026年02月20日 設備条件 - 陽当り良好
- 眺望良好
- バルコニー
- 都市ガス
- 公営水道
- 公共下水
- 電気有
- 食器洗い乾燥機
- システムキッチン
- 対面式キッチン
- カウンターキッチン
- バス・トイレ別
- 浴室乾燥機
- 温水洗浄便座
- トイレ2ヶ所
- 浴室1坪以上
- ユニットバス
- ウォークインシューズクロゼット
- TVモニタ付インターホン
- 宅配ボックス
- 複層ガラス
備考 角地なので日当たりも良く健康的な生活に適しています。4人家族にぴったりの広さのある4LDKの物件情報は当社まで。TVインターフォン付きの物件です。機能的で使いやすいシステムキッチン付きなので、お料理を楽しめます。当社スタッフが茨木市での住まい探しをサポート致しますので、まずはお気軽にお問い合わせください。その際、ご希望条件なども併せてお伝えいただけるとよりスムーズです。 取扱会社 - センチュリー21 エステートSHIN
- 大阪府茨木市下中条町3-1
- TEL:0120-675-118
- 大阪府知事 (5) 第50942号
- 全国宅地建物取引業保証協会
※地図上に表示される物件の位置は付近住所に所在することを表すものであり、実際の物件所在地とは異なる場合がございます。
物件お問い合わせ
- 掲載物件数
-
件
- 本日の更新件数
-
件
同じエリアの中古一戸建
価格と住所の近い物件
- 茨木市新和町 新築戸建
- 3,480万円 2LDK/78.97㎡
- 大阪府茨木市新和町
- 大阪モノレール本線「沢良宜」駅 徒歩13分
- 茨木市沢良宜西 中古戸建
- 3,480万円 3LDK/79.42㎡
- 大阪府茨木市沢良宜西2丁目
- 阪急京都本線「南茨木」駅 徒歩11分
- 茨木市上野町1号棟 新築戸建
- 3,380万円 4LDK/96.99㎡
- 大阪府茨木市上野町
- 東海道本線「茨木」駅 徒歩36分
- ■新規専任物件■茨木市平田二丁目
- 3,180万円 4LDK/105.48㎡
- 大阪府茨木市平田2丁目
- 阪急京都本線「茨木市」駅
- 茨木市西安威1丁目
- 2,980万円 3LDK/87.34㎡
- 大阪府茨木市西安威1丁目
- 東海道本線「茨木」駅
































