■新規専任物件 ■茨木市東太田三丁目 ■2010年1月建築
新着情報:■新規専任物件 ■茨木市東太田三丁目 ■2010年1月建築の空室情報ならコチラ。117.51㎡の建物面積がある物件です。駅まで徒歩15分の場所に立地しています。駐車が2台できるので、様々な用途に使えます。茨木市にお引越しを検討している方は、東海道本線摂津富田近くにある当社お勧めの戸建て情報を是非ご覧下さい。センチュリー21 エステートSHINが、笑顔になる快適な暮らしをご提供致します。
-
ローンシミュレーションこの物件を購入した場合の、月々の支払い価格の一例です。借り入れを保証するものではございません。
- 返済期間
-
- 金利
-
- ボーナス時の増額(1回分)
-
- 借入金額:
-
- 頭金:
-

- 毎月の返済額:
(※元利均等方式 金利5.00%まで ※返済年数5~50年まで入力できます)
(※ボーナスは年2回で計算しています。1000万円まで入力できます)
(※物件購入時、その他諸費用が発生する場合がございます)
情報の見方担当者のコメント 森本 真矢

- 新生活を失敗せず、スタートさせたいならこちらの「■新規専任物件 ■茨木市東太田三丁目 ■2010年1月建築」はいかがでしょうか。4SLDKの間取りです。建物面積が117.51平米以上ある物件でゆったりと生活したい方にいかがでしょうか。広さに余裕のあるお風呂なので体の大きい方にもゆとりがありおすすめです。当社スタッフとマイホームを探しましょう。茨木市や東海道本線摂津富田付近での住まい探しを全力でサポート致します。まずはお気軽にご連絡ください。
ポイント・特徴
物件概要
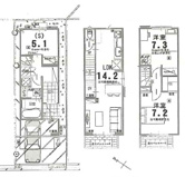
【中古一戸建】 物件番号:100473852 情報更新日:2026年01月23日 次回更新予定日:2026年02月06日所在地 大阪府茨木市東太田3丁目 交通 間取り/詳細 4LDK/ 建物面積(坪数) 117.51㎡(35.54坪) 価格 4,980万円 駐車場/月額料金 有/ 2台駐車可能(普通車+軽) 土地の敷金/保証金 -/- 借地料/借地期間 -/- 土地権利 所有権 土地面積(坪数) 71.96㎡(21.76坪) 傾斜地部分面積 - 路地状敷地 - 私道負担面積/セットバック -/無 高圧線下面積 - 地目/地勢 宅地/平坦 接道状況 角地(北 公道 7.0m)(東 公道 4.8m) 建ぺい率/容積率 60%/200% 用途地域 準工業 都市計画 市街化区域 種別/構造 中古一戸建/木造 階建 3階建 築年月(築年数) 2010年 1月 (築16年) 総区画数/販売区画数 -/- 向き - 現況 居住中 その他の法令上の制限 景観法/宅地造成及び特定盛土等規制法/高度地区/準防火地域 取引態様/引渡時期 専任媒介/相談 建築確認番号 - 物件番号 100473852 取引条件の有効期限 2026年02月06日 設備条件 - 陽当り良好
- フローリング
- 都市ガス
- 公営水道
- 公共下水
- 電気有
- 駐車2台可
- 食器洗い乾燥機
- システムキッチン
- 対面式キッチン
- 浴室乾燥機
- 温水洗浄便座
- トイレ2ヶ所
- 浴室1坪以上
- ユニットバス
- TVモニタ付インターホン
備考 歩いて徒歩7分の場所に万代高槻富田丘店があるのもポイント。生乾きの洗濯物をしっかり乾かしたい時でも、浴室乾燥機付きの物件であればすぐに乾燥できます。寒い冬でも安心できる給湯設備がついています。茨木市の東海道本線摂津富田周辺に新しい住まいをお求めの方は、当社スタッフまでお声かけ下さい。お客様に適した一戸建てをご紹介致します。 取扱会社 - センチュリー21 エステートSHIN
- 大阪府茨木市下中条町3-1
- TEL:0120-675-118
- 大阪府知事 (5) 第50942号
- 全国宅地建物取引業保証協会
※地図上に表示される物件の位置は付近住所に所在することを表すものであり、実際の物件所在地とは異なる場合がございます。
物件お問い合わせ
- 掲載物件数
-
件
- 本日の更新件数
-
件
同じエリアの中古一戸建
価格と住所の近い物件
- ■新規専任物件■茨木市大池2丁目
- 4,780万円 3LDK/85.29㎡
- 大阪府茨木市大池2丁目
- 阪急京都本線「茨木市」駅 徒歩15分
- ■新規専任物件■茨木市中津町
- 4,780万円 3LDK/76.95㎡
- 大阪府茨木市中津町
- 阪急京都本線「茨木市」駅 徒歩10分
- ■180万円値下げしました■茨木市沢良宜浜2丁目■駅徒歩圏の南向き物件
- 4,300万円 4LDK/93.14㎡
- 大阪府茨木市沢良宜浜2丁目
- 大阪モノレール本線「沢良宜」駅 徒歩9分
- 茨木市新和町 新築戸建
- 3,480万円 2LDK/78.97㎡
- 大阪府茨木市新和町
- 大阪モノレール本線「沢良宜」駅 徒歩13分
- 茨木市沢良宜西 中古戸建
- 3,480万円 3LDK/79.42㎡
- 大阪府茨木市沢良宜西2丁目
- 阪急京都本線「南茨木」駅 徒歩11分

































