
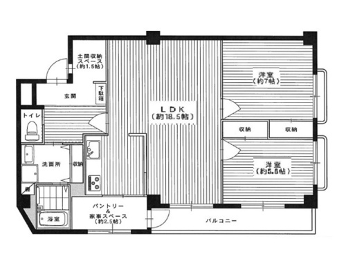
玄関は土間収納(シューズインクローク)になっていて、アウトドア好きには
もってこいのスペースです。
そして、水廻りもシステムキッチンをはじめ、洗面、浴室も新品で
良い雰囲気のものを設置済です!
LDKは全体で18.5帖となっていて、ダイニングスペースをとっても
リビングを広ーく使えちゃいますよ!

00件
最近見た物件
00件
検討リスト
茨木・高槻の不動産|センチュリー21エステートSHIN > センチュリー21 エステートSHINのスタッフブログ記事一覧 > 茨木市並木町「ハイツ並木」先日の続きです

玄関は土間収納(シューズインクローク)になっていて、アウトドア好きには
もってこいのスペースです。
そして、水廻りもシステムキッチンをはじめ、洗面、浴室も新品で
良い雰囲気のものを設置済です!
LDKは全体で18.5帖となっていて、ダイニングスペースをとっても
リビングを広ーく使えちゃいますよ!

件
件

➀売主様向け※先着
専属専任・専任媒介契約締結の個人のお客様
先着1,000名様に2万円分の商品券をプレゼント!
(センチュリー21グループでの先着の為、早期に終了する場合があります)
②売買・賃貸成約者様向け※抽選
WEB応募いただいた方の中から抽選で合計121名様に
素敵な賞品をプレゼント!
◆不動産に関するどんなことでも・・
センチュリー21エステートSHINまでお気軽になんでもご相談ください。
センチュリー21エステートSHINです。当社の夏季休暇を8月13日(火)~17日(土)とさせていただきます。8月18日(日)より通常営業いたします。酷暑ですが、皆様体調にはくれぐれもお気を付けください。...
■年末年始の休業日のお知らせ12月28日(木)~1月4日(木)まで新年1月5日(金)より通常営業いたします■毎年恒例の「センチュリー21春の住み替えフェア」開催いたします期間 2024年1月6日(土)~3月3日まで・ご来店・ご相談いただいたお客様へ「抽選で120名様にお得なグッズをプレゼント」・ご成...




Tweets by @Estateshin
物件掲載中!「いえらぶポータル」